










- Produktkod: 4100503012
- EAN: 6424110257064
- Finns i lager 2 stProdukten skickas inom 1-2 veckor
- Leveranskostnader från 3328 SEKAvhämtning Nordic Online Center Oy, Varikonkatu 3 95420 Torneå Finland0 SEK(Slutliga fraktkostnader kommer att beräknas på kassasidan)
Den stiliga finska Pallas-bastun erbjuder dig en stämningsfull bastuupplevelse.
De stora fönstren i bastun och i dörren ger en fin utsikt över omgivningen och släpper in naturligt ljus. Du kan enkelt justera eller begränsa insynen efter eget önskemål, till exempel med gardiner eller fönsterfilm.
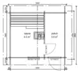
Bastubyggnadens yta är 11 m². Omklädningsrummet är 3,8 m² och basturummet 6,5 m². Stommens material är 42x145 mm timmer. Denna i Finland tillverkade gårdsbastu levereras till din tomt som byggsats och är enkel att montera med hjälp av de medföljande instruktionerna. Monteringsanvisningar och bygglovsritningar kan även laddas ner från vår webbplats.
Hos oss hittar du även andra finska, stiliga, hållbara och praktiska gårdsbyggnader, förråd, garage, utedass och vedbodar till din gård eller sommarstuga.
Produktinformation:
Byggyta: 11,0 m²
Rumsarea: bastu 6,5 m² och omklädningsrum 3,8 m²
Grundmått: bredd 3680 mm, längd 2980 mm
Nockhöjd: 3115 mm
Lägsta invändiga höjd: 2267 mm
Takets nocklängd: 3844 mm (stomme)
Takets fallängd: 2430 mm (stomme)
Bygglovsritningar finns även som bilaga (pdf) på produktkortet i webbutiken
Leveranspaketet innehåller:
Väggar, takstolar och takutsprång i 42x145 mm lättimmer
Material för golvkonstruktion: reglar, 42x145 golvbrädor och vattenlist
Bastulavar i 42x145 plank
Ytterdörr och fönster
Monteringsanvisning
Leveransen inkluderar inte:
Grundmaterial
Material för yttertak
Bastuaggregat, skorsten och skyddsplåt/skyddsunderlag
